廣東星藝裝飾集團廣州有限公司,一起尋找好裝修!
您的當前位置:首頁>裝修案例>簡奢生活—中信西關海
分享到 微信
設計經驗:11年
上傳作品:1111套
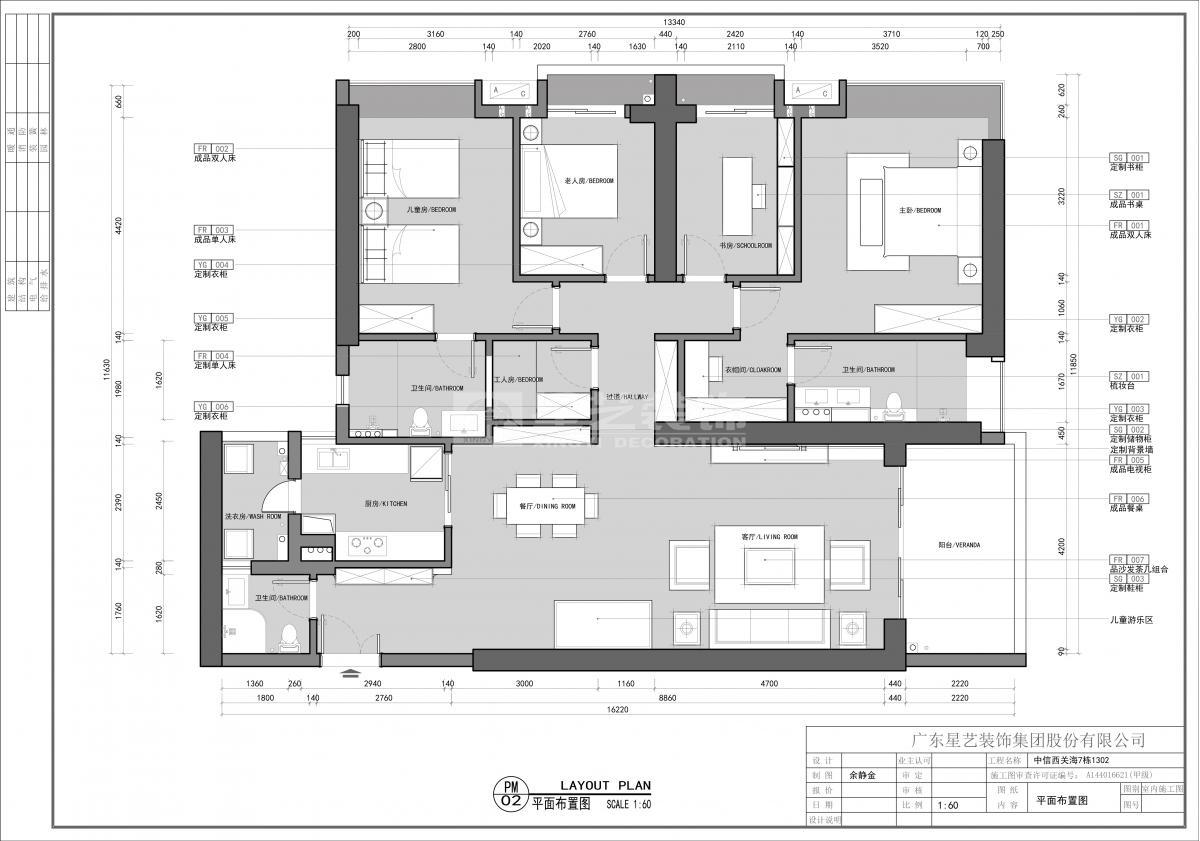
樓盤:中信西關海
戶型:四室兩廳
面積:198 m2
設計風格:輕奢風格
工程造價:40萬
這套案例是中信西關海精裝房改造加軟裝設計,業主對生活品味要求比較高,希望能體現出自己的品質生活。整體空間沉穩輕奢,精致優雅
售前咨詢
裝修熱線
預約量房
回到頂部
24小時全國服務熱線
(c)Copyright 2021 廣東星藝裝飾集團有限公司廣州分公司 版權所有 粵ICP備12080332號 公安部備案號 44010602004978號