方案展示
設計說明
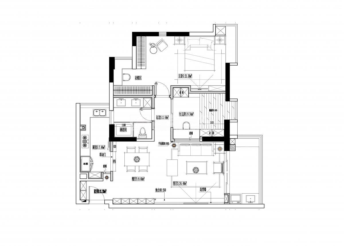
本案的業主是一對年輕的新婚夫婦,注重生活體驗與情趣, 在入戶區與廚房的隔墻中間我開了一個長床,找增加空間的聯系性和光影的互動中,給業主制造了這個生活窺探的情景趣味, 將原本的3房格局改為兩房,增大衣帽區也增加了衛生間的功能,同樣的也滿足了現階段的生活需求, 沙發背后開了一個方窗也是在營造有趣的生活場景和氛圍,先生在沙發上看電視,太太可以,敲敲玻璃對他做一個鬼臉,空間是為人服務的,我覺得就應該賦予它一些情感??臻g會愛上你,同樣你也會愛上這個空間。
[展開]-
星藝設計師的其它設計案例
-
輕奢風格的其它設計案例
關注我們
分享到
微信

立即預約
在線咨詢
在線客服
公安部備案號 44010602004978號