廣東星藝裝飾集團廣州有限公司,一起尋找好裝修!
您的當前位置:首頁>裝修案例>天河六運小區
分享到 微信
設計經驗:11年
上傳作品:1111套
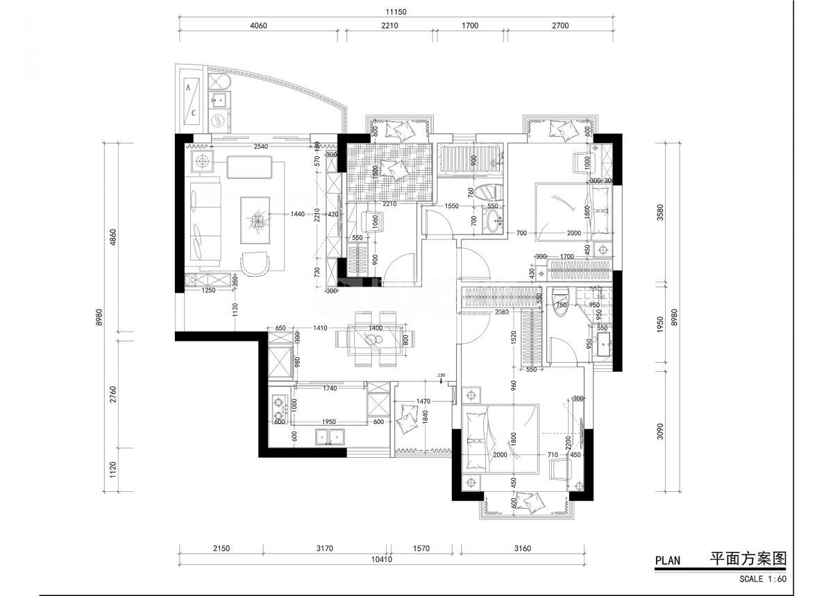
樓盤:六運小區
戶型:三室兩廳
面積:100 m2
設計風格:現代風格
工程造價:15萬
三口之家,有老人同住,采用無主燈設計,盡可能讓空間顯得開闊大氣。兼顧收納,柜子全部做嵌墻式,用暗藏拉手,色調溫潤柔和
售前咨詢
裝修熱線
預約量房
回到頂部
24小時全國服務熱線
(c)Copyright 2021 廣東星藝裝飾集團有限公司廣州分公司 版權所有 粵ICP備12080332號 公安部備案號 44010602004978號