廣東星藝裝飾集團廣州有限公司,一起尋找好裝修!

星藝裝飾(廣州總部)

您的當前位置:首頁>裝修案例>白云堡

分享到 微信

白云堡
白云堡
白云堡
白云堡
白云堡
白云堡

方案展示

白云堡
白云堡
白云堡

設計師:星藝設計師

設計經驗:11年

上傳作品:1111套

白云堡

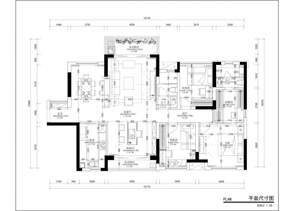
樓盤:白云堡

戶型:四室兩廳

面積:160 m2

設計風格:美式風格

工程造價:18萬

設計說明

業主開廠的,指定要裝美式風格,喜愛美式家具的柔軟,色調的穩健。房子南北通透,格局很好,拿掉一間房用來做餐廳,進一步加大客廳面積,配上茶臺,三五朋友,聚會聊天,裝上投影,周末一家人其樂融融。

[展開]

裝修預約

  • 您的姓名: *
  • 聯系方式: *
  • 樓盤名稱:
  • 建筑面積: m2
  • 裝修設想:
  • 取消

快速預約裝修

  • 您的稱呼
  • 手機號碼
  • 樓盤名稱
  • 建筑面積
  •  

(c)Copyright 2021 廣東星藝裝飾集團有限公司廣州分公司 版權所有 粵ICP備12080332號 公安部備案號 44010602004978號