廣東星藝裝飾集團廣州有限公司,一起尋找好裝修!

星藝裝飾(廣州總部)

您的當前位置:首頁>裝修案例>南國花園

分享到 微信

南國花園
南國花園
南國花園
南國花園
南國花園
南國花園
南國花園
南國花園
南國花園
南國花園
南國花園
南國花園
南國花園
南國花園

方案展示

南國花園
南國花園
南國花園
南國花園
南國花園
南國花園
南國花園

設計師:星藝設計師

設計經驗:11年

上傳作品:1111套

南國花園

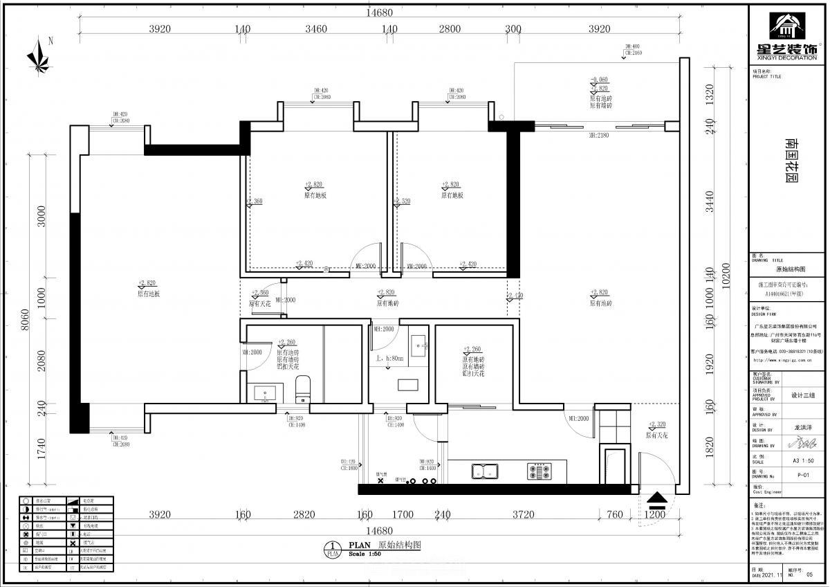
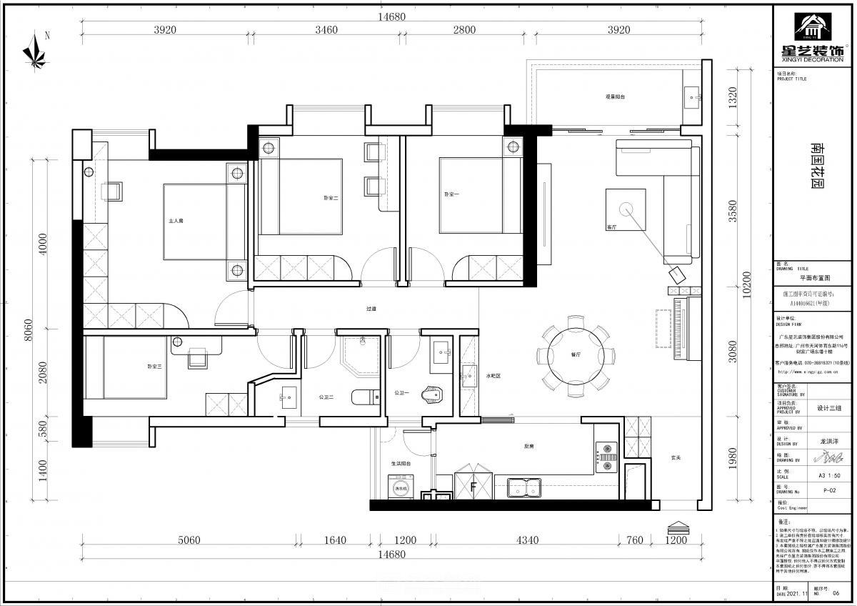
樓盤:南國花園

戶型:四室兩廳

面積:160 m2

設計風格:現代風格

工程造價:20萬

設計說明

客戶為二手房改造,前后溝通后改造挺大,每個客戶對于設計的要求都不一樣,做適合客戶的設計,而不是做讓別人評價設計。

[展開]

裝修預約

  • 您的姓名: *
  • 聯系方式: *
  • 樓盤名稱:
  • 建筑面積: m2
  • 裝修設想:
  • 取消

快速預約裝修

  • 您的稱呼
  • 手機號碼
  • 樓盤名稱
  • 建筑面積
  •  

(c)Copyright 2021 廣東星藝裝飾集團有限公司廣州分公司 版權所有 粵ICP備12080332號 公安部備案號 44010602004978號