廣東星藝裝飾集團廣州有限公司,一起尋找好裝修!

星藝裝飾(廣州總部)

您的當前位置:首頁>裝修案例>嘉仕1604

分享到 微信

嘉仕1604
嘉仕1604
嘉仕1604
嘉仕1604
嘉仕1604
嘉仕1604
嘉仕1604
嘉仕1604
嘉仕1604
嘉仕1604
嘉仕1604
嘉仕1604
嘉仕1604
嘉仕1604
嘉仕1604
嘉仕1604
嘉仕1604
嘉仕1604
嘉仕1604
嘉仕1604
嘉仕1604
嘉仕1604
嘉仕1604
嘉仕1604
嘉仕1604
嘉仕1604

方案展示

嘉仕1604
嘉仕1604
嘉仕1604
嘉仕1604
嘉仕1604
嘉仕1604
嘉仕1604
嘉仕1604
嘉仕1604
嘉仕1604
嘉仕1604
嘉仕1604
嘉仕1604

設計師:星藝設計師

設計經驗:11年

上傳作品:1111套

嘉仕1604

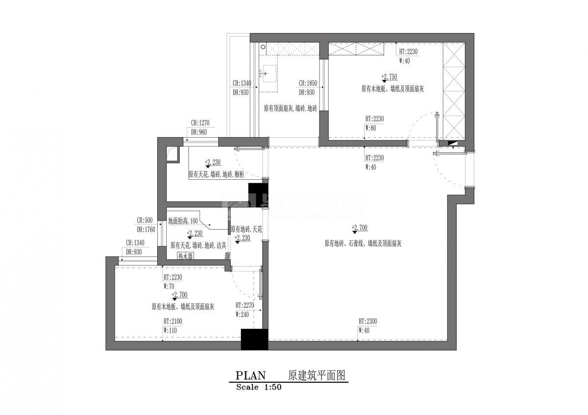
樓盤:嘉仕花園

戶型:兩室兩廳

面積:70 m2

設計風格:現代風格

工程造價:9萬

設計說明

大道至簡,至繁終歸于至簡,至簡助你理清初心,或者說回歸本初,回歸之滿足基本的功能; 本案設計更注重的是在空間上的功能優化,滿足居者的功能需求。 戶型改造前存在采光較差,儲藏空間不足等等問題。所以在設計的思路上為了增加空間的通透性,把陽臺改為開放式的餐廚區,從而解決主臥小,衛生間不方便,儲藏空間不足種種問題。 在設計上我們保留了原有的藤椅,藤椅的保留也讓煥然一新的家留有熟悉的味道、熟悉的情感;巧用隱形門的設計,既能給居者帶來生活上的樂趣又解決了客餐廳因為門太多的突兀感,保證空間的視覺效果,讓家更寧靜整潔;開放式廚房的設計拉近了人與人之間的關系,免去一個人在廚房忙碌的孤獨和無聊。

[展開]

裝修預約

  • 您的姓名: *
  • 聯系方式: *
  • 樓盤名稱:
  • 建筑面積: m2
  • 裝修設想:
  • 取消

快速預約裝修

  • 您的稱呼
  • 手機號碼
  • 樓盤名稱
  • 建筑面積
  •  

(c)Copyright 2021 廣東星藝裝飾集團有限公司廣州分公司 版權所有 粵ICP備12080332號 公安部備案號 44010602004978號