廣東星藝裝飾集團廣州有限公司,一起尋找好裝修!

星藝裝飾(廣州總部)

您的當前位置:首頁>裝修案例>荷塘月色潘府

分享到 微信

荷塘月色潘府
荷塘月色潘府
荷塘月色潘府
荷塘月色潘府
荷塘月色潘府
荷塘月色潘府
荷塘月色潘府
荷塘月色潘府
荷塘月色潘府
荷塘月色潘府
荷塘月色潘府
荷塘月色潘府
荷塘月色潘府
荷塘月色潘府
荷塘月色潘府
荷塘月色潘府

方案展示

荷塘月色潘府
荷塘月色潘府
荷塘月色潘府
荷塘月色潘府
荷塘月色潘府
荷塘月色潘府
荷塘月色潘府
荷塘月色潘府

設計師:萬征國

設計經驗:22年

上傳作品:20套

荷塘月色潘府

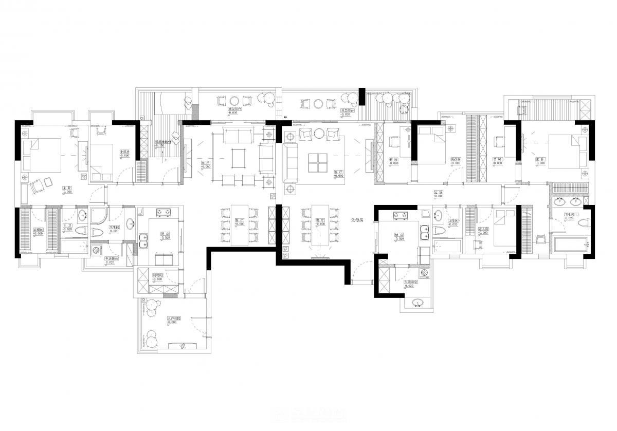
樓盤:荷塘月色

戶型:五室兩廳

面積:280 m2

設計風格:新古典風格

工程造價:65萬

設計說明

本案為溫州企業家量身打造同層并排雙套居室,一套承載業主夫婦的日常起居,以新古典風格鋪陳歲月質感;一套贈予待嫁女兒作為婚房,用輕法式風格勾勒浪漫憧憬。雙居比鄰而居,既維系家人間的親密聯結,又各自保有獨立的生活格調,于繁華廣州的都市語境里,構筑一處兼具家族溫度與審美個性的棲居之所。

[展開]

裝修預約

  • 您的姓名: *
  • 聯系方式: *
  • 樓盤名稱:
  • 建筑面積: m2
  • 裝修設想:
  • 取消

快速預約裝修

  • 您的稱呼
  • 手機號碼
  • 樓盤名稱
  • 建筑面積
  •  

(c)Copyright 2021 廣東星藝裝飾集團有限公司廣州分公司 版權所有 粵ICP備12080332號 公安部備案號 44010602004978號