廣東星藝裝飾集團廣州有限公司,一起尋找好裝修!

星藝裝飾(廣州總部)

您的當前位置:首頁>裝修案例>沁園別墅

分享到 微信

沁園別墅
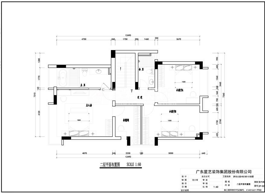
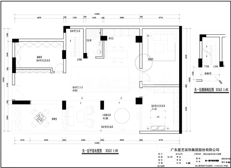
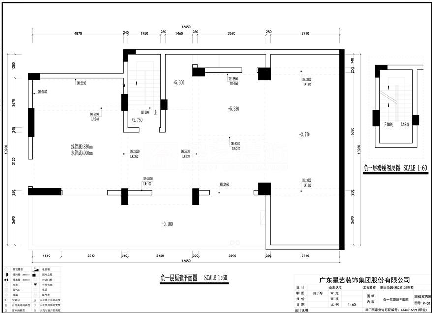
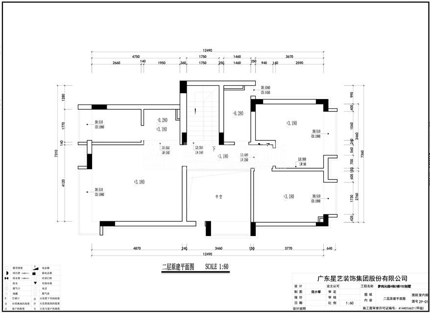
沁園別墅
沁園別墅
沁園別墅
沁園別墅
沁園別墅
沁園別墅
沁園別墅
沁園別墅
沁園別墅
沁園別墅
沁園別墅
沁園別墅
沁園別墅
沁園別墅
沁園別墅
沁園別墅
沁園別墅
沁園別墅
沁園別墅

方案展示

沁園別墅
沁園別墅
沁園別墅
沁園別墅
沁園別墅
沁園別墅
沁園別墅
沁園別墅
沁園別墅
沁園別墅

設計師:星藝設計師

設計經驗:11年

上傳作品:1111套

沁園別墅

樓盤:沁園

戶型:三室兩廳

面積:310 m2

設計風格:簡約風格

工程造價:43萬

設計說明

裝修預約

  • 您的姓名: *
  • 聯系方式: *
  • 樓盤名稱:
  • 建筑面積: m2
  • 裝修設想:
  • 取消

快速預約裝修

  • 您的稱呼
  • 手機號碼
  • 樓盤名稱
  • 建筑面積
  •  

(c)Copyright 2021 廣東星藝裝飾集團有限公司廣州分公司 版權所有 粵ICP備12080332號 公安部備案號 44010602004978號