廣東星藝裝飾集團廣州有限公司,一起尋找好裝修!
您的當前位置:首頁>裝修案例>天譽花園
分享到 微信
設計經驗:11年
上傳作品:1111套
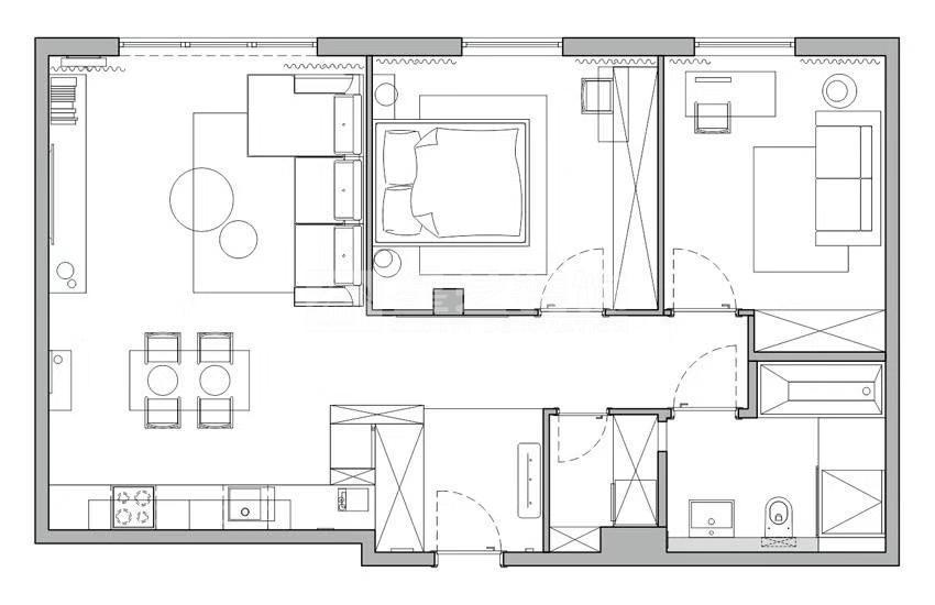
樓盤:天譽花園
戶型:兩室兩廳
面積:80 m2
設計風格:現代風格
工程造價:30萬
本案是一個小戶型的舊房翻新改造,業主是90后的年輕人,喜歡現代簡約的設計風格,追求的簡約與線條的美。
售前咨詢
裝修熱線
預約量房
回到頂部
24小時全國服務熱線
(c)Copyright 2021 廣東星藝裝飾集團有限公司廣州分公司 版權所有 粵ICP備12080332號 公安部備案號 44010602004978號