方案展示
設計說明
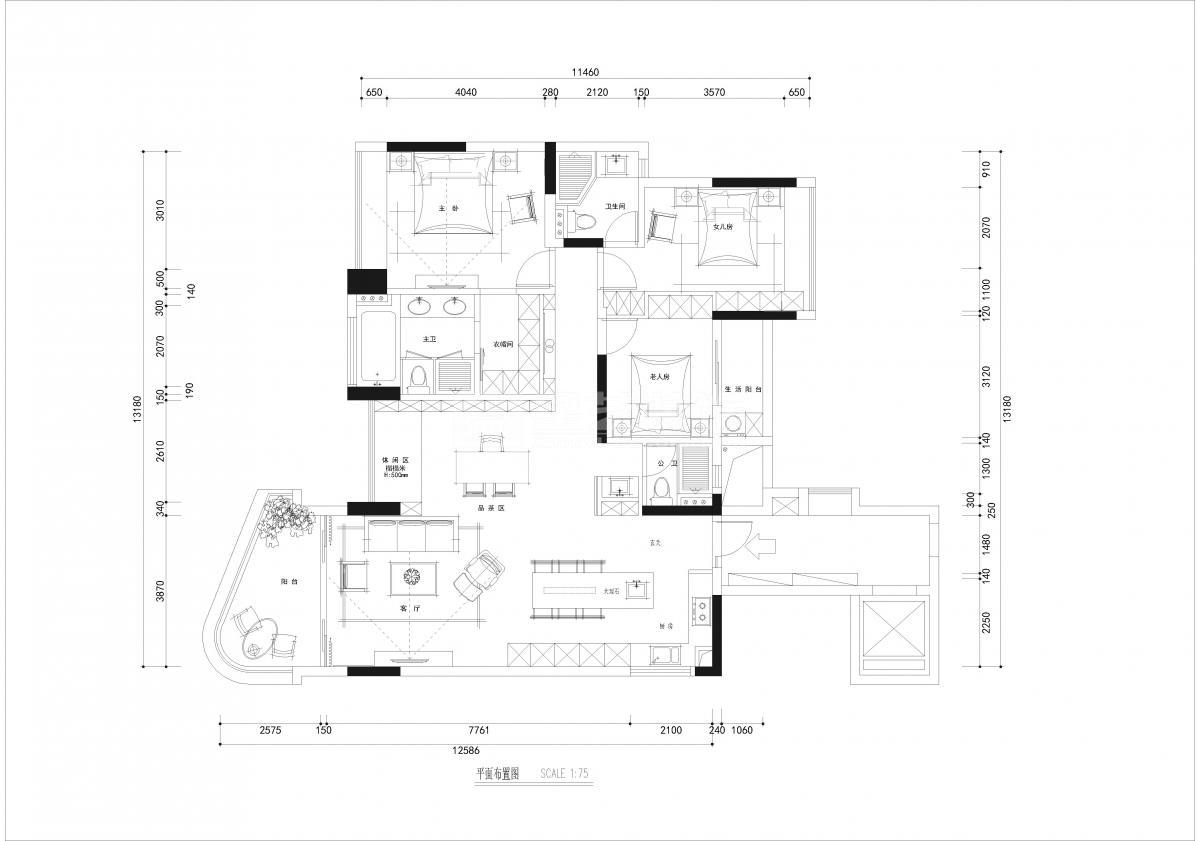
自然環境與都市生活兼具,屋主在家中便能享受到無限美景,在設計初期,設計師了解了屋主的生活動線及活動規律,通過開放式的設計, 結合簡潔的設計手法,去創造簡約、舒適、輕松的居家氛圍。 深灰色的水泥墻面,黑色皮質沙發,搭配高飽和度的靛藍色背柜,在深色的空間氛圍里,淺色的針織地毯脫穎而出,平衡了色彩之間的明 暗關系,質感的材質、利落的線條,簡約中有著藝術品位、結構中深藏著細節美。 客餐廳之間沒有特指的劃分,功能區之間的關系也變得十分緊密,因為寬敞通透的視覺效果,從客廳至餐廳,陳設不多,但都是心頭好, 不必貴但都是精心挑選自帶“故事”?;疑钆涞迩嗌浅4竽懙呐渖?,令工業中帶有復古的味道。 主臥是以套房的形式設計(書房、衣帽間、梳妝區等),看似簡單的現代風,但細節收口考慮精到,壁燈一改傳統樣式,變成聚光燈形式, 原木色外加黑白灰搭配在一起,為室內創造出一種自然簡約的風范,充滿了靜謐、安寧。
[展開]-
星藝設計師的其它設計案例
-
現代風格的其它設計案例
關注我們
分享到
微信

立即預約
在線咨詢
在線客服
公安部備案號 44010602004978號