230㎡中海觀園施工日志丨多年經驗的監理告訴我,水電布線不能忽視這3點基礎工序
2019-09-24 11:25:22
▎中海國際觀園 ▎

效果圖

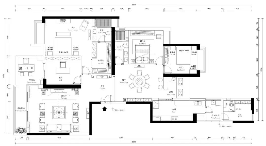
Δ 平面布置圖
項目面積 | 項目戶型 | 項目類型
230㎡ , 5室2廳3衛 , 舊房翻新
服務類型 | 施工造價 | 施工階段
跟蹤服務 , 30萬整 , 水電施工
設計負責 | 施工負責
星藝高級設計師 魏己成 , 星藝裝飾項目經理 劉建軍
Construction Site
10:00am到達中海國際觀園的工地現場,星藝師傅們正在進行著水電開槽的前期工作。開工前,陽臺采用安全網措施、窗戶玻璃均使用窗膜保護。
嚴格按照施工圖紙施工,結合現場及業主的需求、生活習慣進行水電定位。以及家居方案確定每個開關位置,例如網線、電視機線插座,中央空調系統、地暖系統等現場控制好。
??負責這次施工的項目經理劉建軍 劉工給我們簡單地介紹了現場情況與設計圖紙的方案后,還被小編我“追問”了一番。于是,劉工透露了一點關于水電開槽前的“小秘密”
三個要點簡要闡述:

清洗好槽內的灰跡,再按槽的長度掛好通線,用水泥漿或膩子把切開的縫隙填滿,再把水平條嵌入進去調平使兩根水平條在同一水平面上。墻鏡工程驗收時,我們是用一把兩米長的靠尺,中間的縫隙塞一張100元的人民幣都不會掉下去的哦,可謂是精益求精

線管采用排卡固定,在施工前先進行彈水平垂直線,這樣能很好地確保每根線管的橫平豎直,后續水電圖的精準度,同時可以很好避免其他工種施工時對線路進行傷害。
關注我們
在線客服
公安部備案號 44010602004978號