廣東星藝裝飾集團廣州有限公司,一起尋找好裝修!

星藝裝飾(廣州總部)

您的當前位置:首頁關于我們>公司新聞>星案例| 99㎡靜謐小家,讓每個漂泊者找到靈魂棲息地,為愛而聚

星案例| 99㎡靜謐小家,讓每個漂泊者找到靈魂棲息地,為愛而聚

2021-08-03 12:00:00


主案設計丨陳可可  莫瓊

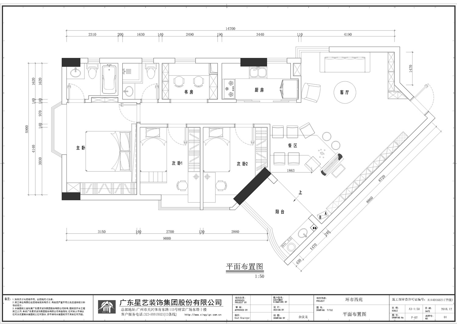
項目面積丨99㎡

風格傾向丨現代

案例地址丨環市西苑



業主故事

房子位于廣州的老城區,需要在最短的時間內通過交談和觀察房子來捕捉感知客戶對居住空間的渴望,你說的我懂,我想的是你要的,這就是與楊老師見第一次面的微妙感覺,她是一個真正有情懷的人,和先生帶著兩個可愛的孩子,工作之余,想要的是品茶,彈琴,寫字,跟家人在安寧的環境下一起享受歲月靜好。

設計理念用設計感染每一位住戶,打造清新自然的環境,任城市喧囂,尋得一處靜謐之地。


客廳



因為客廳的實際采光是比較弱的,所以設計師就以以局部光源為主,營造燈光氛圍,天花板用假梁的元素變中和了原來雜亂低矮的梁,減少空間的壓抑感。





增添綠植讓客廳更加清新自然,結合角落處精心設計的小擺件,形成了絕美的藝術畫卷。


餐廳



增添綠植讓客廳更加清新自然,結合角落處精心設計的小擺件,形成了絕美的藝術畫卷。


餐廳


餐區才是家庭的主要活動區域,設計師特意訂制了超大的異形實木桌,滿足客戶用餐、辦公、泡茶談琴、寫字與孩子做作業的功能。



旁邊就是超大的書柜,搭配綠植盆栽和墻上的茶壺擺件,讓這個角落充滿書卷氣息,一家人一起學習,一起成長,溫馨而美好。



臥室


業主平常非常喜歡看書,提高自身修養,所以設計師特地在兩邊床頭位置設置了小書柜,回家后也可以在窗邊的藤椅上休息,看太陽落山,日暮降臨,沉浸在自己的小世界里,以最好的狀態迎接每一天。



廚房


廚房設計也是比較簡約大氣,生活化,收納的櫥柜同樣采用原木的風格,和整體的設計形成呼應。一日三餐也是跟家人在一起的最歡樂的時光,記錄兒女一天天成長,一點一滴都是幸福的回憶。


快速預約裝修

  • 您的稱呼
  • 手機號碼
  • 樓盤名稱
  • 建筑面積
  •  

(c)Copyright 2021 廣東星藝裝飾集團有限公司廣州分公司 版權所有 粵ICP備12080332號 公安部備案號 44010602004978號