星案例丨700㎡輕奢別墅,捕捉自然玉質,運轉空間韻律造就藝術鋒芒!
2021-09-05 12:00:00
設計定位
Design positioning
溫馨 時尚 藝術輕奢 打造高端生活品質
消費群體定位
Consumer group positioning
多次置位 品質追求
主案設計丨蔡志登 帥伯尤
項目名稱丨梵語清泠
項目面積丨700㎡
風格傾向丨現代輕奢
項目地址丨湖南長沙瀏陽·東方麗苑
Design concept
設計理念
Material Analysis
材料分析
Color Analysis
色彩分析
Design Technique
設計手法



Graphic design analysis
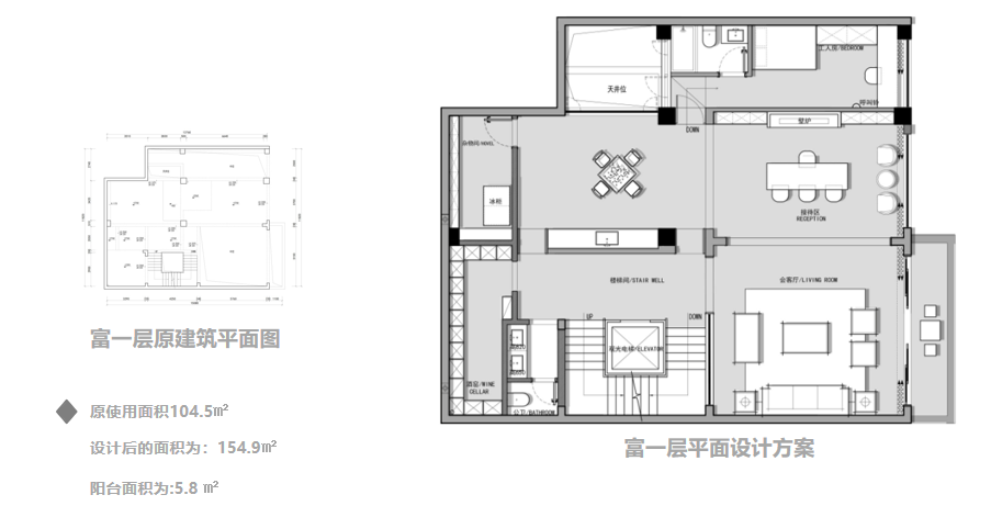
平面設計分析




Living Room
一層客廳
客廳主要以素雅的米白色為色彩基調, 黑白灰的經典搭配打造現代輕奢的舒適與高級感,一眼便能看到部分二樓的場景和貫穿樓層的透明電梯,讓空間更加開闊,靈動活潑。
Dining Room
一層餐廳
一樓的餐廳開闊明亮,圓形吊頂與圓桌設計更是相得益彰,既能在陽光明媚時與家人共進午餐,也能在晚餐時看著明月閑話家常。
Old People's
一層老人房
想讓家中老人住的舒適,睡眠環境是尤為重要的,所以老人房采用更加柔和的色彩搭配,采用深色的木地板與暖色的燈光和裝飾。
Banqueting area
負一層宴席區
宴席區與工作區相連,也是業主讀書會客的重要場所,整體空間層次豐富,動線流暢,大理石臺面搭配白色櫥柜,簡約耐看
Reception are
負一層接待區
接待區用優質的皮革和布藝沙發,打造舒適高端的休閑環境,并且設置陽臺觀景,彰顯高品質生活。
Working area
負一層工作區
工作區靠近落地窗,光線充足。挖空墻面設計置物架,縮減空間又更加整體,并且端景的設計極具輕奢風格。
Working area
二層臥室
二樓的臥室設置兩張雙人床,平??梢宰鳛閭溆门P室,方便有客人或者親戚留宿。
Motor area
負二層運動區
運動區設置了臺球桌,跑步機等器材,業余時間也可以鍛練健康的體魄,勞逸結合。
Children's area
兒童房
從小培養興趣愛好是非常重要的,小孩的活動區中用化學公式為背景,設置望遠鏡,積木等器材,讓孩子能多方面發展。
Entryway
負二層玄關
為了方面業主的日常生活,玄關處設置了正面的墻柜,下方留空方便打掃又防潮。
Master Bedroom
三層主臥
主臥用大面積灰調與對稱的設計,沉穩高級。簡約之中,又有無盡的雅致與濃厚的生活氣息。
Master Guard
三層主衛
主衛用統一的白色色調擴大了視覺空間,看起來更加干凈整潔,搭配黑色描邊增加時尚氣息,純碎而含蓄。
關注我們
在線客服
公安部備案號 44010602004978號