廣東星藝裝飾集團廣州有限公司,一起尋找好裝修!

星藝裝飾(廣州總部)

您的當前位置:首頁關于我們>公司新聞>180㎡現代輕奢,青衫盈磚雕琢人間煙火,停駐歲月共享“慢”生活

180㎡現代輕奢,青衫盈磚雕琢人間煙火,停駐歲月共享“慢”生活

2022-02-27 12:00:00



主案設計丨潘楊

項目面積丨180

風格傾向丨現代輕奢

項目地址丨帝景苑

主要材料丨云石灰地磚 亞克力板 金屬不銹鋼


案例背景


業主是前客戶介紹,舊房翻新,很多的需求和很多方案的事情基本都是網上確認溝通,也算是一種很奇特的體驗。本案的風格定位是簡約輕奢,主色調灰色配仿古的木色,配飾以精致的藝術品搭配提升空間品質,力求提煉到位。



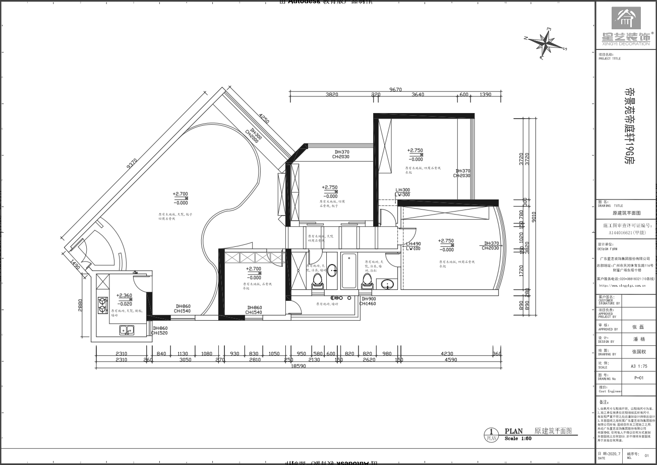
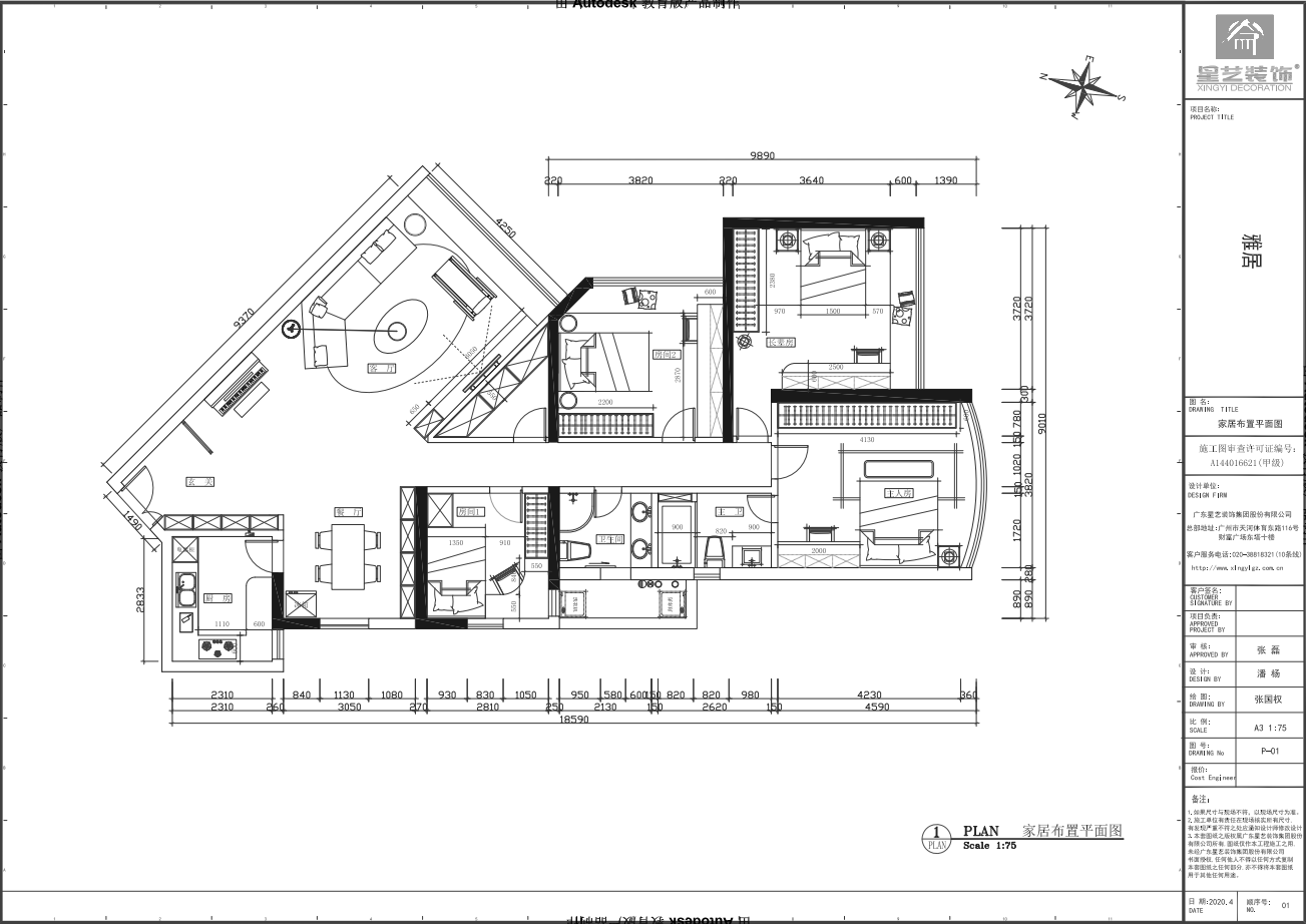
(平面圖)


客廳/改造前



改造后




在客廳進門處巧妙的加上了玄關屏風,整體的材質也和整體的風格相得益彰,選用了金屬拉絲不銹鋼材質夾亞克力玻璃做拉斯處理。



走進大門,迎面的光線穿過屏風給人一絲絲的柔和和神秘,客廳背景設計兼顧儲物和整體的空間提升,開放格的選擇尤為重要。



迎窗的置物格,是早上迎接晨光最早的位置。陽光穿過玻璃打在鮮花上,那一刻絕對是美好的。



每個小角落都用別出心裁的設計帶來慢慢的幸福感,精美的燈盞,夢幻的筆調把一切思念與美好雜糅在了一起,把家的性格制造了多種多樣。


用餐區/改造前



改造后



煥然一新的用餐區簡約清新,整面的置物柜中間設置置物臺,最常用的東西都方便觸手可得,也可以放喜愛的擺件,整體沒有繁復的設計,只有最貼近人間煙火的靜謐氣息。


臥室/改造前



改造后



大人的臥室優雅大氣,整面衣柜讓房間更加整潔,窗簾選擇更加輕盈的材質,在視覺上擴大空間,設計上營造出寧靜溫馨的氛圍,輕松的心情在家中得以釋放


兒童房改造前



兒童房改造后



由于工作原因,業主對房間內的最大需求就是大的書桌,在格局上稍微做了調整。原木書桌會更加敞亮柔和,有層次感的色彩也能減少工作或者閱讀的疲勞感。體驗休憩于家的那份寧靜與愜意。


快速預約裝修

  • 您的稱呼
  • 手機號碼
  • 樓盤名稱
  • 建筑面積
  •  

(c)Copyright 2021 廣東星藝裝飾集團有限公司廣州分公司 版權所有 粵ICP備12080332號 公安部備案號 44010602004978號